
北京瑞光極遠數碼科技有限公司
銷售熱線:010-51668966
24小時服務熱線:010-51668966
地址:北京市海淀區上地六街康得大廈
網站:zpnews.net
IDM GTD442雙千兆電話光端機
一、 概述
IDM GTD442雙千兆電話光端機是(shi)我公司推出(chu)的(de)新一代基(ji)于高速光纖(xian)傳輸技術和PCM技(ji)術(shu)的光電一(yi)體化傳輸設備,集以太網傳輸、PCM多(duo)業(ye)務接入功能(neng)于一體,可滿足廣大用戶對寬帶、窄帶多(duo)種業(ye)務光纖傳輸和接入的需求。
IDM GTD442是一個(ge)有多種配置的光(guang)纖接入設備(bei),它可以提供以太(tai)網(wang)、電話、串口的光(guang)纖復(fu)用(yong),可以和IDM GP2000系(xi)列光接口設備(bei)互通。
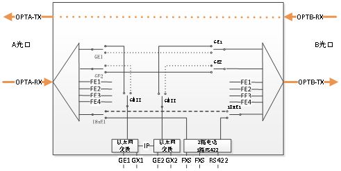
IDM GTD442的(de)光纖接口速率(lv)為2.5G,可以提供2個線(xian)速1000M的以太網通道(dao),每個線速1000M的(de)通(tong)道上均有1個電口GE和1個光口GX;也能夠提供18個E1帶寬(kuan)的(de)的(de)傳輸通道。
IDM GTD442在線路傳(chuan)輸接口上最多提供兩組(zu)光(guang)纖接口、構成互備份光(guang)口、或者鏈網、環網等。
在用(yong)戶接口(kou)上,提供4組(zu)以太(tai)網(wang)接口、4路(lu)電話(局端(duan)、遠端(duan)、磁(ci)石、二線音頻)、2路RS485或者1路RS422通道。其中以太網接口可以配置成(cheng)物(wu)理隔離或(huo)者VLAN隔離(li)模(mo)式。
在局端可以和GP2000和(he)GP2400光(guang)模(mo)塊(kuai)互(hu)聯,通過光(guang)模(mo)塊(kuai)可以連接(jie)IDM G3CP、IDM OMP、IDM 30E、IDM 30F、IDM GP-MPconv等設(she)備。
可廣泛(fan)應用(yong)于公安、電(dian)力、鐵路、礦山等專網和移動、聯通(tong)、電(dian)信(xin)等公網領域(yu)。

IDMGTD442設備前面板(ban)

IDMGTD442設備后(hou)面板
二、 設備工作原理

單光(guang)口設(she)備工(gong)作原理圖

雙光口設備工作原理圖
三、 產品特性
雙物理隔(ge)離線速(su)1000M以太網通道(dao);
提供4路話路接口,可(ke)以是FXO局端自動電(dian)話、FXS遠(yuan)端自動電話(hua)、MAG磁石電話(hua);
2路可選的(de)RS485數據通道;
光(guang)口為SFP接口,可以(yi)根據需求配置光模(mo)塊;
可(ke)以定制(zhi)成(cheng)雙光口(kou),組成(cheng)鏈網。
四、 單光口設備功能及用途
功(gong)能
u 點對點普通用途電話光端機圖
u 點對點磁石電話光端機
用途:
u 光纖到辦公室,內網(wang)外網(wang)物理隔離;
u 公安卡口信息點(dian)建設
u 社區、工廠信息點建設
五、 雙光口設備功能及用途
功能
u 雙光口鏈網電話光端機接口注釋圖
u 與IDM GP2400-30E的(de)鏈網組網圖
用途
u 隧道(dao)施工(gong)應用
u 河(he)流監測治理(li)
u 社區信息點建設(she)
六、 技術規格
1) 光接口
|
接(jie)口(kou)類型(xing) |
FC |
光纖模式 |
單模(可選多模) |
|
收/發速(su)率 |
2.5Gbps |
收/發波長 |
1310nm/1550nm |
|
發光功(gong)率(lv) |
-12~-6dBm |
接收靈敏度 |
優于-18dBm |
|
傳輸距離 |
20Km,可選裝(zhuang)遠(yuan)距離(li)光模塊實現更遠(yuan)距離(li)的(de)光纖(xian)傳輸 |
||
2) 以太網(wang)
|
接口類型 |
RJ-45 |
傳(chuan)輸速(su)率 |
10M/100M/1000M自(zi)適(shi)應 |
|
標準協議 |
支(zhi)持IEEE802.3 |
工作方式 |
全/半(ban)雙工/自(zi)適應 |
3) FXO、FXS接口
|
音頻范圍(wei) |
300Hz~3400Hz |
壓(ya)縮率 |
ITU G.711中A律 |
|
阻抗 |
三元復式阻抗200Ω+560Ω//0.1μF |
環路電流 |
20mA/路 |
4) 電源及功耗
|
供電方式(shi) |
AC220V/DC- 48V |
整(zheng)機功耗 |
≤90W |
5) 環境條件
|
工作(zuo)溫度(du) |
-10oC ~+50oC |
相對濕度(du) |
0~95%(無凝結) |
6) 產品尺寸
|
長(chang)度×深度×高度 |
××(mm) |
七、 應用示例

鏈網應用

星(xing)網應用

環網應用(yong)
![]()

點對(dui)點




